Район:
Чкаловский
Срок сдачи:
Сдан
Материал:
Кирпично-монолитный
Отделка:
Чистовая

Про жилой комплекс Тишина

Жилой комплекс состоит из корпуса высотой 23 этажа. Возведен по кирпично-монолитной технологии строительства с фасадами, облицованными штукатуркой. На первом этаже обустроено лобби с мягкой зоной, имеется колясочная с велосипедной. Установлены пассажирский и грузовой лифты.

В жилом комплексе представлено множество планировочных решений — от студий до 2-х комнатных квартир классического типа. Сдаются лоты с чистовой отделкой, увеличенными окнами и высотой потолков 2,72 метра.

Во внутреннем дворе с ландшафтным дизайном предусмотрено несколько функциональных зон. На детской площадке игровые комплексы рассчитаны на детей разных возрастов. Также есть зоны для занятия йогой и спортом. Для владельцев автомобилей предусмотрен подземный паркинг.

Жилой комплекс расположен в Чкаловском районе. В пешей доступности находятся образовательные учреждения, медицинские центры, магазины и кафе, парк Камвольного комбината. До метро «Ботаническая» 10 минут транспортом.

Безопасность

Паркинг

Прямо сейчас в продаже

Инфраструктура

Квартиры в ЖК Тишина

Показать фильтр
Комнаты
Этаж
От
До
3
5
8
10
12
Цена
От
До
6 883 605
7040051
7196496
7352942
7 509 387
Площадь
От
До
28.72
31.18
33.63
36.09
38.54
выбрать вариант
списком
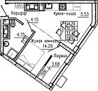
Однокомнатная квартира
28.72 м2
ЖК Екатеринбург
28.72 м2 11 этаж
28.72 м2
Кухня 5.53 м2
Жилая 14.29 м2
Балкон: да
11 этаж
Цена:
6 883 605 
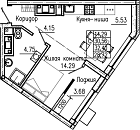
Однокомнатная квартира
28.72 м2
ЖК Екатеринбург
28.72 м2 10 этаж
28.72 м2
Кухня 5.53 м2
Жилая 14.29 м2
Балкон: да
10 этаж
Цена:
6 883 605 
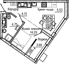
Однокомнатная квартира
28.72 м2
ЖК Екатеринбург
28.72 м2 12 этаж
28.72 м2
Кухня 5.53 м2
Жилая 14.29 м2
Балкон: да
12 этаж
Цена:
6 883 605 
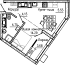
Однокомнатная квартира
28.72 м2
ЖК Екатеринбург
28.72 м2 7 этаж
28.72 м2
Кухня 5.53 м2
Жилая 14.29 м2
Балкон: да
7 этаж
Цена:
6 883 605 
Однокомнатная квартира
28.72 м2
ЖК Екатеринбург
28.72 м2 8 этаж
28.72 м2
Кухня 5.53 м2
Жилая 14.29 м2
Балкон: да
8 этаж
Цена:
6 883 605 

Ипотечный калькулятор

Заполните одну заявку для всех банков. Банки партнеры подберут вам оптимальную ипотечную программу, рассчитают точную сумму ипотечных платежей, срок кредита и расскажут о всей процедуре выдачи ипотеки. Сервис бесплатный, все договорные отношения по оформлению ипотечного кредита вы заключаете с банком

Сумма кредита  
Ежемесячный платеж  
Онлайн-заявка на ипотеку
Оставьте заявку сразу в несколько банков-партнеров

Ипотечный калькулятор не является рекламой чьих-либо финансовых услуг, это лишь инструмент для расчета, не основанного на конкретном банковском продукте, исходя из вводимых пользователем данных.

Спасибо за заявку!