Атлас Юник

Срок сдачи: 2 кв. 2028

206 квартир в наличии
Район:
Чкаловский
Срок сдачи:
2 кв. 2028
Материал:
Кирпично-монолитный
Отделка:
Чистовая

Про жилой комплекс Атлас Юник

Жилой комплекс состоит из 3 корпусов высотой 27 и 28 этажей. Возведены по кирпично-монолитной технологии строительства с фасадами из комбинированных материалов. В лобби предусмотрено рабочее место для сотрудника консьерж-сервиса, мягкая зона ожидания с диванами и креслами, коворкинг и игровая зона для детей. Места общего пользования разделены на зоны, предусмотрен дополнительный вход со стороны парковочной зоны. В каждом доме продуманы колясочные для хранения детского инвентаря и специально оборудованные места для мойки лап домашних животных и велосипедов. В каждой секции установлены 4 скоростных бесшумных лифа — пассажирские и грузовые.

В жилом комплексе представлено множество планировочных решений — от студий до 3-х комнатных квартир. Сдаются лоты с подчистовой отделкой, увеличенными окнами и высотой потолков от 2,66 метров.

Внутренний двор имеет концепцию «двор без машин». Пространство оформлено в едином стиле с лаунж-зонами, велоинфраструктурой и зелеными изгородями из цветов. Ведется круглосуточное видеонаблюдение. Для владельцев автомобилей предусмотрен подземный паркинг.

Жилой комплекс находится в Чкаловском районе. В пешей доступности расположены образовательные учреждения, медицинские центры, стадионы. До метро «Ботаническая» 10 минут транспортом.

Безопасность

Паркинг

Инфраструктура

Квартиры в ЖК Атлас Юник

Показать фильтр
Комнаты
Этаж
От
До
2
9
15
22
28
Цена
От
До
5 844 325
7940237
10036150
12132062
14 227 974
Площадь
От
До
34.23
48.33
62.42
76.52
90.61
выбрать вариант
списком
Однокомнатная квартира
40.03 м2
ЖК Екатеринбург
40.03 м2 8 этаж
40.03 м2
Кухня 18.66 м2
Жилая 12.63 м2
Балкон: нет
8 этаж
Цена:
6 902 936 
Однокомнатная квартира
38.35 м2
ЖК Екатеринбург
38.35 м2 4 этаж
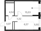
38.35 м2
Кухня 12.49 м2
Жилая 15.03 м2
Балкон: нет
4 этаж
Цена:
6 956 065 
Однокомнатная квартира
38.35 м2
ЖК Екатеринбург
38.35 м2 3 этаж
38.35 м2
Кухня 12.49 м2
Жилая 15.03 м2
Балкон: нет
3 этаж
Цена:
6 956 065 
Однокомнатная квартира
38.35 м2
ЖК Екатеринбург
38.35 м2 2 этаж
38.35 м2
Кухня 12.49 м2
Жилая 15.03 м2
Балкон: нет
2 этаж
Цена:
6 956 065 
Однокомнатная квартира
38.19 м2
ЖК Екатеринбург
38.19 м2 6 этаж
38.19 м2
Кухня 16.69 м2
Жилая 11.86 м2
Балкон: нет
6 этаж
Цена:
6 971 477 

Ипотечный калькулятор

Заполните одну заявку для всех банков. Банки партнеры подберут вам оптимальную ипотечную программу, рассчитают точную сумму ипотечных платежей, срок кредита и расскажут о всей процедуре выдачи ипотеки. Сервис бесплатный, все договорные отношения по оформлению ипотечного кредита вы заключаете с банком

Сумма кредита  
Ежемесячный платеж  
Онлайн-заявка на ипотеку
Оставьте заявку сразу в несколько банков-партнеров

Ипотечный калькулятор не является рекламой чьих-либо финансовых услуг, это лишь инструмент для расчета, не основанного на конкретном банковском продукте, исходя из вводимых пользователем данных.

Спасибо за заявку!