Ньютон парк

Срок сдачи: Сдан

33 квартиры в наличии
Район:
Железнодорожный
Срок сдачи:
Сдан
Материал:
Кирпично-монолитный
Отделка:
Подчистовая

Про жилой комплекс Ньютон парк

Современный семейный проект, возведенный по технологии кирпично-монолитного строительства с фасадами, облицованными штукатуркой. Дома и подъезды квартала выполнены в архитектурном стиле — ар-деко. В холлах выполнена дизайнерская отделка. Для жителей с питомцами предусмотрена лапомойка. В здании имеется пассажирский и грузовой лифты, колясочные и кладовые для хранения сезонных вещей. 

В проекте представлено множество планировочных решений: от 1-комнатных до просторных 3х-комнатных квартир как в классических, так и в европланировках. Все лоты сдаются с подчистовой отделкой, высотой потолков до 2,7 метров и стандартными окнами.

Территория комплекса благоустроена: организована безбарьерная среда для легкого доступа в комплекс, двор закрыт от машин, имеются места отдыха для взрослых, спортивная площадка, игровой комплекс для детей постарше и участок с песочницей и качелями для малышей. У подъездов обустроены велопарковки. Для автомобилистов предусмотрен подземный паркинг.

Жилой комплекс расположен на пересечении улиц Краснолесья и Михеева. До остановки автобуса 2 минуты пешком, троллейбуса — 5 минут. На машине дорога до центра займет 15 минут, до аэропорта — 25. В пешей доступности: детские сады и школы, спортивные комплексы и торговые центры, медицинские учреждения, кафе и рестораны.

Безопасность

Паркинг

Инфраструктура

Квартиры в ЖК Ньютон парк

Показать фильтр
Комнаты
Этаж
От
До
1
5
9
13
17
Цена
От
До
5 331 150
6446363
7561575
8676788
9 792 000
Площадь
От
До
32.6
41.7
50.9
60.0
69.1
выбрать вариант
списком
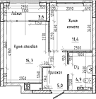
Двухкомнатная квартира
37 м2
ЖК Екатеринбург
37 м2 11 этаж
37 м2
Кухня 15.7 м2
Жилая 11.4 м2
Балкон: да
11 этаж
Цена:
5 875 200 
Двухкомнатная квартира
37 м2
ЖК Екатеринбург
37 м2 9 этаж
37 м2
Кухня 15.7 м2
Жилая 11.4 м2
Балкон: да
9 этаж
Цена:
5 905 800 
Двухкомнатная квартира
34.9 м2
ЖК Екатеринбург
34.9 м2 17 этаж
34.9 м2
Кухня 15 м2
Жилая 11.5 м2
Балкон: да
17 этаж
Цена:
5 913 000 
Двухкомнатная квартира
37.4 м2
ЖК Екатеринбург
37.4 м2 9 этаж
37.4 м2
Кухня 16.1 м2
Жилая 11.4 м2
Балкон: да
9 этаж
Цена:
5 982 300 
Двухкомнатная квартира
37.7 м2
ЖК Екатеринбург
37.7 м2 10 этаж
37.7 м2
Кухня 14.5 м2
Жилая 12.7 м2
Балкон: да
10 этаж
Цена:
5 997 600 

Ипотечный калькулятор

Заполните одну заявку для всех банков. Банки партнеры подберут вам оптимальную ипотечную программу, рассчитают точную сумму ипотечных платежей, срок кредита и расскажут о всей процедуре выдачи ипотеки. Сервис бесплатный, все договорные отношения по оформлению ипотечного кредита вы заключаете с банком

Сумма кредита  
Ежемесячный платеж  
Онлайн-заявка на ипотеку
Оставьте заявку сразу в несколько банков-партнеров

Ипотечный калькулятор не является рекламой чьих-либо финансовых услуг, это лишь инструмент для расчета, не основанного на конкретном банковском продукте, исходя из вводимых пользователем данных.

Спасибо за заявку!