РАЗУМ на Малышева

Срок сдачи: 4 кв. 2028

169 квартир в наличии
Район:
Кировский
Срок сдачи:
4 кв. 2028
Материал:
Монолитный
Отделка:
Подчистовая

Про жилой комплекс РАЗУМ на Малышева

Жилой комплекс состоит из 4 башен высотой 31 этаж. Дома возведены по монолитной технологии, а фасады облицованы декоративной штукатуркой. На зданиях установлена архитектурная подсветка. На первом этаже выполнена дизайнерская отделка гранд-лобби, установлены велосипедные и кладовые комнаты, пассажирский и грузовой лифты.

В проекте представлено 14 планировочных решений для квартир площадью от 36 до 85 кв. метров. Квартиры сдаются с подчистовой отделкой «white box», которая включает стяжку пола, штукатурку стен и электропроводку. Высота потолков составляет 2,7 метров, окна оснащены двухкамерными стеклопакетами с шумоизоляцией. В квартирах предусмотрены балконы, на 30–31 этажах представлены квартиры с террасами. 

Внутренняя территория озеленена на 60% от общей площади. На территории установлено многоуровневое освещение, обустроены 3 игровые площадки и 5 разнообразных маршрутов для прогулок. На первых этажах предусмотрены коммерческие помещения. Территория представляет собой закрытый двор с круглосуточным видеонаблюдением и автоматизированным доступом. В комплексе есть собственная управляющая компания. Для владельцев автомобилей предусмотрены многоуровневый и подземный паркинг.

Комплекс расположен в Кировском районе. В пешей доступности находятся образовательные учреждения, медицинские центры, салоны красоты, магазины, фитнес-залы, музеи и досуговые центры. Метро «Площадь 1905 года» и «Геологическая» расположены в 10 минутах транспортом.

Безопасность

Паркинг

Инфраструктура

Квартиры в ЖК РАЗУМ на Малышева

Показать фильтр
Комнаты
Этаж
От
До
1
9
17
24
32
Цена
От
До
2 652 746
20011310
37369873
54728437
72 087 000
Площадь
От
До
16
76
136
196
256
выбрать вариант
списком
Двухкомнатная квартира
36.32 м2
ЖК Екатеринбург
36.32 м2 17 этаж
36.32 м2
Кухня 17.22 м2
Жилая 10.17 м2
Балкон: нет
17 этаж
Цена:
6 597 000 
Двухкомнатная квартира
36.32 м2
ЖК Екатеринбург
36.32 м2 18 этаж
36.32 м2
Кухня 17.22 м2
Жилая 10.17 м2
Балкон: нет
18 этаж
Цена:
6 633 000 
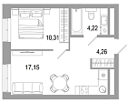
Двухкомнатная квартира
35.94 м2
ЖК Екатеринбург
35.94 м2 15 этаж
35.94 м2
Кухня 17.15 м2
Жилая 10.31 м2
Балкон: нет
15 этаж
Цена:
6 644 000 
Двухкомнатная квартира
36.84 м2
ЖК Екатеринбург
36.84 м2 18 этаж
36.84 м2
Кухня 16.91 м2
Жилая 11.05 м2
Балкон: нет
18 этаж
Цена:
6 669 000 
Двухкомнатная квартира
38.86 м2
ЖК Екатеринбург
38.86 м2 8 этаж
38.86 м2
Кухня 15.25 м2
Жилая 12.66 м2
Балкон: нет
8 этаж
Цена:
6 858 000 

Ипотечный калькулятор

Заполните одну заявку для всех банков. Банки партнеры подберут вам оптимальную ипотечную программу, рассчитают точную сумму ипотечных платежей, срок кредита и расскажут о всей процедуре выдачи ипотеки. Сервис бесплатный, все договорные отношения по оформлению ипотечного кредита вы заключаете с банком

Сумма кредита  
Ежемесячный платеж  
Онлайн-заявка на ипотеку
Оставьте заявку сразу в несколько банков-партнеров

Ипотечный калькулятор не является рекламой чьих-либо финансовых услуг, это лишь инструмент для расчета, не основанного на конкретном банковском продукте, исходя из вводимых пользователем данных.

Спасибо за заявку!