Квартиры

Показать фильтр
Район
Жилой комплекс
Комнаты
Этаж
От
До
1
9
17
24
32
Цена
От
До
2 652 746.00
20011309.50
37369873.00
54728436.50
72 087 000.00
Площадь
От
До
15.50
75.64
135.78
195.91
256.05
выбрать вариант
Квартира студия
24.7 м2
ЖК Сибирский сад Екатеринбург, Сибирский тракт
24.7 м2 28 этаж
24.7 м2
Жилая 15.52 м2
Балкон: нет
28 этаж
Монолитный
Цена:
5 250 000 
Квартира студия
24.94 м2
ЖК Река. Дом на набережной Екатеринбург, ул Щербакова
24.94 м2 30 этаж
24.94 м2
Жилая 14.51 м2
Балкон: нет
30 этаж
Монолитный
Цена:
5 250 000 
Однокомнатная квартира
32.7 м2
ЖК Комсомольский Екатеринбург, ул 40-летия Комсомола
32.7 м2 8 этаж
32.7 м2
Кухня 13.7 м2
Жилая 11.4 м2
Балкон: да
8 этаж
Кирпично-монолитный
Цена:
5 250 000 
Квартира студия
24.7 м2
ЖК Комсомольский Екатеринбург, ул 40-летия Комсомола
24.7 м2 9 этаж
24.7 м2
Жилая 17.6 м2
Балкон: да
9 этаж
Кирпично-монолитный
Цена:
5 250 000 
Двухкомнатная квартира
42.97 м2
ЖК Уральский сад Екатеринбург, п Совхозный
42.97 м2 2 этаж
42.97 м2
Кухня 17.52 м2
Жилая 12.17 м2
Балкон: нет
2 этаж
Монолитный
Цена:
5 250 000 
Двухкомнатная квартира
37.6 м2
ЖК Брусника в Академическом Екатеринбург, ул Академика Ландау
37.6 м2 5 этаж
37.6 м2
Кухня 18.6 м2
Жилая 9.6 м2
Балкон: да
5 этаж
Кирпично-монолитный
Цена:
5 250 000 
Квартира студия
24.94 м2
ЖК Река. Дом на набережной Екатеринбург, ул Щербакова
24.94 м2 30 этаж
24.94 м2
Жилая 14.51 м2
Балкон: нет
30 этаж
Монолитный
Цена:
5 250 000 
Однокомнатная квартира
33.7 м2
ЖК Парк комплекс Шолохов Екатеринбург, ул. Шолохова
33.7 м2 15 этаж
33.7 м2
Кухня 15.38 м2
Жилая 10.38 м2
Балкон: да
15 этаж
Кирпично-монолитный
Цена:
5 250 000 
Квартира студия
23.93 м2
ЖК Сибирский сад Екатеринбург, Сибирский тракт
23.93 м2 19 этаж
23.93 м2
Жилая 16.23 м2
Балкон: нет
19 этаж
Монолитный
Цена:
5 250 000 
Квартира студия
23 м2
ЖК Азина, 16 Екатеринбург, ул. Азина
23 м2 4 этаж
23 м2
Жилая 15.4 м2
Балкон: нет
4 этаж
Монолитный
Цена:
5 249 175 
Квартира студия
22.7 м2
ЖК Тактика Екатеринбург, ул Татищева
22.7 м2 17 этаж
22.7 м2
Жилая 17.6 м2
Балкон: да
17 этаж
Кирпично-монолитный
Цена:
5 248 750 
Двухкомнатная квартира
31.1 м2
ЖК Чкаловский парк Екатеринбург, пер Газорезчиков
31.1 м2 23 этаж
31.1 м2
Кухня 12.8 м2
Жилая 10.1 м2
Балкон: да
23 этаж
Газобетон
Цена:
5 247 709 
Однокомнатная квартира
38.5 м2
ЖК Утес Екатеринбург, ул Гаршина
38.5 м2 16 этаж
38.5 м2
Кухня 16.2 м2
Жилая 8.5 м2
Балкон: нет
16 этаж
Монолитный
Цена:
5 247 550 
Двухкомнатная квартира
35.65 м2
ЖК Малахит Екатеринбург, ул 40-летия Комсомола
35.65 м2 11 этаж
35.65 м2
Кухня 17.1 м2
Жилая 10.5 м2
Балкон: да
11 этаж
Панельный
Цена:
5 247 278 
Квартира студия
31.1 м2
ЖК Первый Академ Екатеринбург, ул Краснолесья
31.1 м2 3 этаж
31.1 м2
Жилая 22.9 м2
Балкон: нет
3 этаж
Кирпично-монолитный
Цена:
5 247 000 
Квартира студия
29.15 м2
ЖК Пайер Екатеринбург, ул Летчиков
29.15 м2 14 этаж
29.15 м2
Жилая 20.16 м2
Балкон: нет
14 этаж
Кирпично-монолитный
Цена:
5 246 009 
Однокомнатная квартира
42.86 м2
ЖК Атлас Ривер Екатеринбург, ул Щербакова
42.86 м2 1 этаж
42.86 м2
Кухня 16.3 м2
Жилая 9.69 м2
Балкон: нет
1 этаж
Кирпично-монолитный
Цена:
5 245 925 
Однокомнатная квартира
36.6 м2
ЖК Береговой Екатеринбург, ул Щербакова
36.6 м2 18 этаж
36.6 м2
Кухня 13.9 м2
Жилая 11.3 м2
Балкон: нет
18 этаж
Монолитный
Цена:
5 245 500 
Двухкомнатная квартира
34.9 м2
ЖК Парк Победы Екатеринбург, ул Бакинских комиссаров
34.9 м2 9 этаж
34.9 м2
Кухня 16.8 м2
Жилая 11 м2
Балкон: нет
9 этаж
Кирпично-монолитный
Цена:
5 245 470 
Квартира студия
26.35 м2
ЖК Русь Екатеринбург, ул Крауля
26.35 м2 29 этаж
26.35 м2
Жилая 21.8 м2
Балкон: да
29 этаж
Кирпично-монолитный
Цена:
5 245 350 
Квартира студия
26.62 м2
ЖК Трилогия Екатеринбург, ул Волгоградская
26.62 м2 16 этаж
26.62 м2
Жилая 17.92 м2
Балкон: да
16 этаж
Кирпично-монолитный
Цена:
5 245 240 
Однокомнатная квартира
37.3 м2
ЖК Новокольцовский Екатеринбург, Новосинарский б-р
37.3 м2 16 этаж
37.3 м2
Кухня 15.8 м2
Жилая 11.2 м2
Балкон: да
16 этаж
Кирпично-монолитный
Цена:
5 245 000 
Квартира студия
27.85 м2
ЖК Сибирский сад Екатеринбург, Сибирский тракт
27.85 м2 10 этаж
27.85 м2
Жилая 19.15 м2
Балкон: нет
10 этаж
Монолитный
Цена:
5 245 000 
Двухкомнатная квартира
35.6 м2
ЖК Малахит Екатеринбург, ул 40-летия Комсомола
35.6 м2 23 этаж
35.6 м2
Кухня 16.9 м2
Жилая 10.7 м2
Балкон: нет
23 этаж
Панельный
Цена:
5 244 770 
Однокомнатная квартира
32.82 м2
ЖК Эхо леса Екатеринбург, ул Профессора Матвеева
32.82 м2 4 этаж
32.82 м2
Кухня 15.9 м2
Жилая 10.31 м2
Балкон: нет
4 этаж
Кирпично-монолитный
Цена:
5 244 636 
Квартира студия
34.54 м2
ЖК Rauta Екатеринбург, ул Таватуйская
34.54 м2 3 этаж
34.54 м2
Жилая 26.42 м2
Балкон: нет
3 этаж
Кирпично-монолитный
Цена:
5 244 631 
Квартира студия
31 м2
ЖК Первый Академ Екатеринбург, ул Краснолесья
31 м2 5 этаж
31 м2
Жилая 23.02 м2
Балкон: нет
5 этаж
Кирпично-монолитный
Цена:
5 244 000 
Квартира студия
24.7 м2
ЖК Солнечный Екатеринбург, ул Лучистая
24.7 м2 5 этаж
24.7 м2
Жилая 15.6 м2
Балкон: нет
5 этаж
Кирпично-монолитный
Цена:
5 243 656 
Квартира студия
22.7 м2
ЖК Тактика Екатеринбург, ул Татищева
22.7 м2 20 этаж
22.7 м2
Жилая 17.6 м2
Балкон: да
20 этаж
Кирпично-монолитный
Цена:
5 243 000 
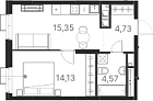
Однокомнатная квартира
38.78 м2
ЖК Атлас Ривер Екатеринбург, ул Щербакова
38.78 м2 24 этаж
38.78 м2
Кухня 15.35 м2
Жилая 14.13 м2
Балкон: нет
24 этаж
Кирпично-монолитный
Цена:
5 242 979 

< 1 ... 939 940 941 942 943 ... 1123 >