Квартиры

Показать фильтр
Район
Жилой комплекс
Комнаты
Этаж
От
До
1
9
17
24
32
Цена
От
До
2 652 746.00
20011309.50
37369873.00
54728436.50
72 087 000.00
Площадь
От
До
15.50
75.64
135.78
195.91
256.05
выбрать вариант
Квартира студия
24.7 м2
ЖК Сибирский сад Екатеринбург, Сибирский тракт
24.7 м2 31 этаж
24.7 м2
Жилая 15.52 м2
Балкон: нет
31 этаж
Монолитный
Цена:
5 138 000 
Однокомнатная квартира
30.83 м2
ЖК Новокольцовский Екатеринбург, Новосинарский б-р
30.83 м2 8 этаж
30.83 м2
Кухня 11.8 м2
Жилая 10.28 м2
Балкон: да
8 этаж
Кирпично-монолитный
Цена:
5 138 000 
Однокомнатная квартира
40.64 м2
ЖК Атлас Ривер Екатеринбург, ул Щербакова
40.64 м2 7 этаж
40.64 м2
Кухня 15.35 м2
Жилая 15.28 м2
Балкон: нет
7 этаж
Кирпично-монолитный
Цена:
5 137 858 
Двухкомнатная квартира
35.5 м2
ЖК Чкаловский парк Екатеринбург, пер Газорезчиков
35.5 м2 14 этаж
35.5 м2
Кухня 15 м2
Жилая 11.8 м2
Балкон: да
14 этаж
Газобетон
Цена:
5 137 740 
Двухкомнатная квартира
38.3 м2
ЖК Хрустальные ключи Екатеринбург, Мезенский пер
38.3 м2 25 этаж
38.3 м2
Кухня 16.7 м2
Жилая 9.9 м2
Балкон: нет
25 этаж
Панельный
Цена:
5 137 740 
Однокомнатная квартира
38.78 м2
ЖК Атлас Ривер Екатеринбург, ул Щербакова
38.78 м2 15 этаж
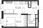
38.78 м2
Кухня 15.35 м2
Жилая 14.13 м2
Балкон: нет
15 этаж
Кирпично-монолитный
Цена:
5 137 714 
Однокомнатная квартира
38.78 м2
ЖК Атлас Ривер Екатеринбург, ул Щербакова
38.78 м2 14 этаж
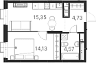
38.78 м2
Кухня 15.35 м2
Жилая 14.13 м2
Балкон: нет
14 этаж
Кирпично-монолитный
Цена:
5 137 714 
Однокомнатная квартира
38.78 м2
ЖК Атлас Ривер Екатеринбург, ул Щербакова
38.78 м2 13 этаж
38.78 м2
Кухня 15.35 м2
Жилая 14.13 м2
Балкон: нет
13 этаж
Кирпично-монолитный
Цена:
5 137 714 
Однокомнатная квартира
31.2 м2
ЖК Первый Академ Екатеринбург, ул Краснолесья
31.2 м2 11 этаж
31.2 м2
Кухня 9.3 м2
Жилая 10.45 м2
Балкон: нет
11 этаж
Кирпично-монолитный
Цена:
5 137 600 
Квартира студия
22.7 м2
ЖК Тактика Екатеринбург, ул Татищева
22.7 м2 8 этаж
22.7 м2
Жилая 17.6 м2
Балкон: да
8 этаж
Кирпично-монолитный
Цена:
5 137 600 
Квартира студия
33.7 м2
ЖК Rauta Екатеринбург, ул Таватуйская
33.7 м2 5 этаж
33.7 м2
Жилая 25.58 м2
Балкон: нет
5 этаж
Кирпично-монолитный
Цена:
5 137 547 
Квартира студия
33.7 м2
ЖК Rauta Екатеринбург, ул Таватуйская
33.7 м2 5 этаж
33.7 м2
Жилая 25.58 м2
Балкон: нет
5 этаж
Кирпично-монолитный
Цена:
5 137 547 
Однокомнатная квартира
27.97 м2
ЖК Старт Екатеринбург, ул Вильгельма де Геннина
27.97 м2 22 этаж
27.97 м2
Кухня 7.2 м2
Жилая 13 м2
Балкон: да
22 этаж
Кирпично-монолитный
Цена:
5 137 200 
Однокомнатная квартира
27.25 м2
ЖК Старт Екатеринбург, ул Вильгельма де Геннина
27.25 м2 20 этаж
27.25 м2
Кухня 7.2 м2
Жилая 13 м2
Балкон: да
20 этаж
Кирпично-монолитный
Цена:
5 137 200 
Квартира студия
28.5 м2
ЖК Контрасты Екатеринбург, ул Викулова
28.5 м2 12 этаж
28.5 м2
Жилая 17.1 м2
Балкон: да
12 этаж
Кирпично-монолитный
Цена:
5 137 076 
Однокомнатная квартира
32.85 м2
ЖК Новокольцовский Екатеринбург, Новосинарский б-р
32.85 м2 7 этаж
32.85 м2
Кухня 13.6 м2
Жилая 10.39 м2
Балкон: да
7 этаж
Кирпично-монолитный
Цена:
5 137 000 
Двухкомнатная квартира
33.1 м2
ЖК Amundsen Екатеринбург, ул Амундсена
33.1 м2 2 этаж
33.1 м2
Кухня 16 м2
Жилая 10.7 м2
Балкон: нет
2 этаж
Кирпично-монолитный
Цена:
5 137 000 
Двухкомнатная квартира
33.1 м2
ЖК Amundsen Екатеринбург, ул Амундсена
33.1 м2 2 этаж
33.1 м2
Кухня 16 м2
Жилая 10.7 м2
Балкон: нет
2 этаж
Кирпично-монолитный
Цена:
5 137 000 
Квартира студия
26.6 м2
ЖК Русь Екатеринбург, ул Крауля
26.6 м2 23 этаж
26.6 м2
Жилая 21.8 м2
Балкон: да
23 этаж
Кирпично-монолитный
Цена:
5 135 700 
Квартира студия
28.32 м2
ЖК Спутник-1 Екатеринбург, ул Академика Ландау
28.32 м2 29 этаж
28.32 м2
Жилая 19.22 м2
Балкон: да
29 этаж
Кирпично-монолитный
Цена:
5 135 700 
Квартира студия
33.7 м2
ЖК Rauta Екатеринбург, ул Таватуйская
33.7 м2 3 этаж
33.7 м2
Жилая 25.59 м2
Балкон: нет
3 этаж
Кирпично-монолитный
Цена:
5 134 948 
Квартира студия
33.7 м2
ЖК Rauta Екатеринбург, ул Таватуйская
33.7 м2 3 этаж
33.7 м2
Жилая 25.59 м2
Балкон: нет
3 этаж
Кирпично-монолитный
Цена:
5 134 948 
Квартира студия
33.7 м2
ЖК Rauta Екатеринбург, ул Таватуйская
33.7 м2 3 этаж
33.7 м2
Жилая 25.58 м2
Балкон: нет
3 этаж
Кирпично-монолитный
Цена:
5 134 499 
Квартира студия
29.1 м2
ЖК Береговой Екатеринбург, ул Щербакова
29.1 м2 5 этаж
29.1 м2
Жилая 21.2 м2
Балкон: да
5 этаж
Монолитный
Цена:
5 134 400 
Однокомнатная квартира
33.13 м2
ЖК Новокольцовский Екатеринбург, Новосинарский б-р
33.13 м2 11 этаж
33.13 м2
Кухня 14.28 м2
Жилая 10.72 м2
Балкон: да
11 этаж
Кирпично-монолитный
Цена:
5 134 000 
Квартира студия
28.6 м2
ЖК Основинские кварталы Екатеринбург, ул Учителей
28.6 м2 1 этаж
28.6 м2
Жилая 19.6 м2
Балкон: нет
1 этаж
Кирпично-монолитный
Цена:
5 133 600 
Квартира студия
31.97 м2
ЖК Новация Екатеринбург, ул Краснофлотцев
31.97 м2 24 этаж
31.97 м2
Жилая 24.17 м2
Балкон: да
24 этаж
Кирпично-монолитный
Цена:
5 133 255 
Квартира студия
31.97 м2
ЖК Новация Екатеринбург, ул Краснофлотцев
31.97 м2 24 этаж
31.97 м2
Жилая 24.17 м2
Балкон: да
24 этаж
Кирпично-монолитный
Цена:
5 133 255 
Квартира студия
33.7 м2
ЖК Rauta Екатеринбург, ул Таватуйская
33.7 м2 5 этаж
33.7 м2
Жилая 25.59 м2
Балкон: нет
5 этаж
Кирпично-монолитный
Цена:
5 133 215 
Однокомнатная квартира
36.9 м2
ЖК Утес Екатеринбург, ул Гаршина
36.9 м2 19 этаж
36.9 м2
Кухня 16.1 м2
Жилая 8.9 м2
Балкон: нет
19 этаж
Монолитный
Цена:
5 132 790 

< 1 ... 956 957 958 959 960 ... 1123 >