Срок сдачи:
4 кв. 2027
Материал:
Монолитный
Отделка:
Чистовая

Про жилой комплекс Азина, 16

Жилой комплекс состоит из шести высоток в 32 этажа, возведенные по долговечной монолитной технологии.  В оформлении фасада здания используется штукатурка белого цвета. В ЖК сделана дизайнерская отделка входных групп, установлены современные лифты.

В жилом комплексе предложено множество планировочных решений: от компактных студий до просторных 3-комнатных квартир. С 5 этажа расположены видовые варианты. Сдаются они с чистовой отделкой, увеличенными и панорамными окнами и высотой потолков 3,32 метра.

На первом этаже дома размещены различные коммерческие помещения. Также на закрытой территории комплекса предусмотрен детский сад, площадки для детей разных возрастов, места для занятия спортом и прогулочные аллеи с велодорожками. Для владельцев автомобилей предусмотрен подземный паркинг.

Жилой комплекс расположен в центральной части Екатеринбурга. Инфраструктура района развита — в пешей доступности продуктовые магазины, рестораны и кафе, школы и вузы. 

Безопасность

Паркинг

Инфраструктура

Квартиры в ЖК Азина, 16

Показать фильтр
Комнаты
Этаж
От
До
1
9
17
24
32
Цена
От
До
2 636 727
19868295
37099864
54331432
71 563 000
Площадь
От
До
16
76
136
196
256
выбрать вариант
списком
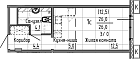
Квартира студия
25.8 м2
ЖК Азина, 16 Екатеринбург, ул. Азина
25.8 м2 9 этаж
25.8 м2
Жилая 17.3 м2
Балкон: нет
9 этаж
Монолитный
Цена:
5 083 374 
Квартира студия
26.2 м2
ЖК Азина, 16 Екатеринбург, ул. Азина
26.2 м2 2 этаж
26.2 м2
Жилая 17.1 м2
Балкон: нет
2 этаж
Монолитный
Цена:
5 106 511 
Квартира студия
26 м2
ЖК Азина, 16 Екатеринбург, ул. Азина
26 м2 15 этаж
26 м2
Жилая 17.5 м2
Балкон: нет
15 этаж
Монолитный
Цена:
5 169 190 
Квартира студия
26 м2
ЖК Азина, 16 Екатеринбург, ул. Азина
26 м2 20 этаж
26 м2
Жилая 17.5 м2
Балкон: нет
20 этаж
Монолитный
Цена:
5 206 760 
Квартира студия
23 м2
ЖК Азина, 16 Екатеринбург, ул. Азина
23 м2 3 этаж
23 м2
Жилая 15.4 м2
Балкон: нет
3 этаж
Монолитный
Цена:
5 243 310 

Ипотечный калькулятор

Заполните одну заявку для всех банков. Банки партнеры подберут вам оптимальную ипотечную программу, рассчитают точную сумму ипотечных платежей, срок кредита и расскажут о всей процедуре выдачи ипотеки. Сервис бесплатный, все договорные отношения по оформлению ипотечного кредита вы заключаете с банком

Сумма кредита  
Ежемесячный платеж  
Онлайн-заявка на ипотеку
Оставьте заявку сразу в несколько банков-партнеров

Ипотечный калькулятор не является рекламой чьих-либо финансовых услуг, это лишь инструмент для расчета, не основанного на конкретном банковском продукте, исходя из вводимых пользователем данных.

Спасибо за заявку!