Жилой комплекс состоит из 4 башен высотой 31 этаж. Дома возведены по монолитной технологии, а фасады облицованы декоративной штукатуркой. На зданиях установлена архитектурная подсветка. На первом этаже выполнена дизайнерская отделка гранд-лобби, установлены велосипедные и кладовые комнаты, пассажирский и грузовой лифты.
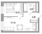
В проекте представлено 14 планировочных решений для квартир площадью от 36 до 85 кв. метров. Квартиры сдаются с подчистовой отделкой «white box», которая включает стяжку пола, штукатурку стен и электропроводку. Высота потолков составляет 2,7 метров, окна оснащены двухкамерными стеклопакетами с шумоизоляцией. В квартирах предусмотрены балконы, на 30–31 этажах представлены квартиры с террасами.
Внутренняя территория озеленена на 60% от общей площади. На территории установлено многоуровневое освещение, обустроены 3 игровые площадки и 5 разнообразных маршрутов для прогулок. На первых этажах предусмотрены коммерческие помещения. Территория представляет собой закрытый двор с круглосуточным видеонаблюдением и автоматизированным доступом. В комплексе есть собственная управляющая компания. Для владельцев автомобилей предусмотрены многоуровневый и подземный паркинг.
Комплекс расположен в Кировском районе. В пешей доступности находятся образовательные учреждения, медицинские центры, салоны красоты, магазины, фитнес-залы, музеи и досуговые центры. Метро «Площадь 1905 года» и «Геологическая» расположены в 10 минутах транспортом.
 
					 
					 
					 
					