Жилой комплекс состоит из 2 домов переменной этажности. Возводятся дома по долговечной кирпично-монолитной технологии строительства с фасадами, облицованными кирпичом. Прозрачные входные группы расположены на уровне земли, домофон находится в теплом тамбуре. Дизайнерский холл оборудован мягкой зоной для ожидания такси, колясочными комнатами, гостевыми санузлами и лапомойками. Установлены пассажирский и грузовой лифты.
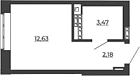
В жилом комплексе представлено многообразие планировочных решений — от квартир с одной спальней до вариантов с тремя спальнями. Отделка «под ключ» включена в стоимость. А для тех, кто хочет заказать дизайн-проект самостоятельно, предлагаются квартиры со скидкой в подчистовом варианте отделки. Сдаются лоты с увеличенными окнами и высотой потолков 2,64м.
Дома жилого комплекса объединены общим двором-парком с многоуровневым озеленением. Пространство двора разделено на зоны: для малышей, для подвижных игр детей постарше, воркаут-площадки для занятий спортом, а также прогулочные дорожки и уютные уголки для спокойного отдыха. На первом этаже располагается галерея магазинов. Приватная территория, двор без машин и система видеонаблюдения делают дом безопасным и комфортным. Для владельцев автомобилей предусмотрена стоянка.
Жилой комплекс расположен в Чкаловском районе. В пешей доступности расположены магазины, аптеки, кафе, парк отдыха с благоустроенной набережной, остановка общественного транспорта. До метро «Ботаническая» 10 мин езды на автомобиле.
 
					 
					 
					 
					