Район:
Чкаловский
Срок сдачи:
Сдан
Материал:
Кирпично-монолитный
Отделка:
Чистовая

Про жилой комплекс Тишина

Жилой комплекс состоит из корпуса высотой 23 этажа. Возведен по кирпично-монолитной технологии строительства с фасадами, облицованными штукатуркой. На первом этаже обустроено лобби с мягкой зоной, имеется колясочная с велосипедной. Установлены пассажирский и грузовой лифты.

В жилом комплексе представлено множество планировочных решений — от студий до 2-х комнатных квартир классического типа. Сдаются лоты с чистовой отделкой, увеличенными окнами и высотой потолков 2,72 метра.

Во внутреннем дворе с ландшафтным дизайном предусмотрено несколько функциональных зон. На детской площадке игровые комплексы рассчитаны на детей разных возрастов. Также есть зоны для занятия йогой и спортом. Для владельцев автомобилей предусмотрен подземный паркинг.

Жилой комплекс расположен в Чкаловском районе. В пешей доступности находятся образовательные учреждения, медицинские центры, магазины и кафе, парк Камвольного комбината. До метро «Ботаническая» 10 минут транспортом.

Безопасность

Паркинг

Прямо сейчас в продаже

Инфраструктура

Квартиры в ЖК Тишина

Показать фильтр
Комнаты
Этаж
От
До
3
5
8
10
12
Цена
От
До
6 883 605
7040051
7196496
7352942
7 509 387
Площадь
От
До
28.72
31.18
33.63
36.09
38.54
выбрать вариант
списком
Однокомнатная квартира
28.72 м2
ЖК Екатеринбург
28.72 м2 9 этаж
28.72 м2
Кухня 5.53 м2
Жилая 14.29 м2
Балкон: да
9 этаж
Цена:
6 883 605 
Однокомнатная квартира
28.72 м2
ЖК Екатеринбург
28.72 м2 5 этаж
28.72 м2
Кухня 5.53 м2
Жилая 14.29 м2
Балкон: да
5 этаж
Цена:
6 883 605 
Однокомнатная квартира
28.72 м2
ЖК Екатеринбург
28.72 м2 6 этаж
28.72 м2
Кухня 5.53 м2
Жилая 14.29 м2
Балкон: да
6 этаж
Цена:
6 883 605 
Однокомнатная квартира
32.83 м2
ЖК Екатеринбург
32.83 м2 3 этаж
32.83 м2
Кухня 5.53 м2
Жилая 18.4 м2
Балкон: нет
3 этаж
Цена:
6 883 605 
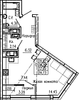
Однокомнатная квартира
34.73 м2
ЖК Екатеринбург
34.73 м2 12 этаж
34.73 м2
Кухня 7.44 м2
Жилая 14.45 м2
Балкон: да
12 этаж
Цена:
7 509 387 

Ипотечный калькулятор

Заполните одну заявку для всех банков. Банки партнеры подберут вам оптимальную ипотечную программу, рассчитают точную сумму ипотечных платежей, срок кредита и расскажут о всей процедуре выдачи ипотеки. Сервис бесплатный, все договорные отношения по оформлению ипотечного кредита вы заключаете с банком

Сумма кредита  
Ежемесячный платеж  
Онлайн-заявка на ипотеку
Оставьте заявку сразу в несколько банков-партнеров

Ипотечный калькулятор не является рекламой чьих-либо финансовых услуг, это лишь инструмент для расчета, не основанного на конкретном банковском продукте, исходя из вводимых пользователем данных.

Спасибо за заявку!