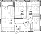
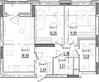
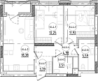
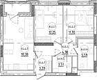
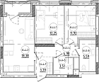
45.36 м2
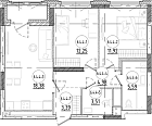
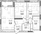
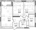
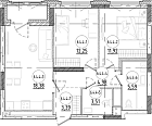
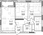
45.36 м2
Жилая 13.78 м2
Балкон: да
Тех, кто в ближайшее время планирует обзавестись собственным новым жильем, очень волнует вопрос – какие на сегодняшний день цены на недвижимость? Если вы обратитесь в компанию «PR-FLAT.RU», то стоимость квартир в Екатеринбурге вас приятно удивит. А все дело в том, что мы являемся прямыми представителями застройщиков, подрядчиков и первоначально установленная стоимость вашей будущей квартиры остается неизменной. Получается, что только у нас вы сможете купить квартиру по самой низкой цене в городе.
За счет этого цены на квартиры в Екатеринбурге в компании «PR-FLAT.RU» вполне доступны и приемлемы для вашего бюджета.
Все очень просто:
Мы предлагаем вам четыре варианта оплаты:
Полная оплата – 100% взнос
100 оплата стоимости приобретенной недвижимости дает право на получение максимальной скидки, то есть цена квартиры в Екатеринбурге для вас еще ниже указанной на сайте. Размер скидки будет зависеть от числа комнат в купленной вами квартире.
Рассрочка
Беспроцентная рассрочка платежа – это проявление доверия и шаг навстречу к нашим клиентам. Если вы владеете основной денежной суммой, то оставшуюся часть вы можете выплатить частями, оформив рассрочку от застройщика.
Ипотека
Можно также взять ипотеку для приобретения жилья у наших банков-партнеров. В этом случае вас также ожидает максимальная скидка.
Обмен недвижимости
В качестве оплаты стоимости приобретаемого жилья может выступать также обмен недвижимости, которой вы владеете сейчас, на новую, покупаемую. Стоимость однокомнатных квартир в постройках прошлого века может быть меньшей, чем на аналогичную жилплощадь в новостройке. Тем не менее, сумма, вырученная от продажи квартиры, покроет больше половины цены на приобретаемую вами квартиру.
Имейте в виду, что цены на долевое строительство намного ниже цен уже сданных в эксплуатацию объектов недвижимости, однако этот вариант не подходит тем, для кого весомую роль играет фактор быстроты приобретения жилья.
Что касается готового жилья, то стоимость однокомнатных квартир не сильно отличается от двухкомнатных. А если сравнивать «однушку» в центре и небольшую по площади двухкомнатную квартиру на окраине, то тут и вовсе цена может быть одинаковой.
«PR-FLAT.RU» поможет разобраться во всех тонкостях и хитростях рынка недвижимости! Обращайтесь к нам прямо сейчас!