Шаумяна 77

Срок сдачи: 3 кв. 2026

105 квартир в наличии
Район:
Ленинский
Срок сдачи:
3 кв. 2026
Материал:
Кирпично-монолитный
Отделка:
Подчистовая

Про жилой комплекс Шаумяна 77

Жилой комплекс представляет собой дом высотой 23 этажа. Возведен по кирпично-монолитной технологии строительства с фасадами из комбинированных материалов. Входная группа выполнена по эксклюзивному дизайнерскому проекту, в котором сочетаются красный и медный цвета. На первом этаже предусмотрена лаундж-зона, а также организована колясочная и велосипедная комната. Установлены бесшумные высокоскоростные лифты.

В жилом комплексе представлено множество планировочных решений — от однокомнатных до 3-х комнатных квартир. В каждой квартире предусмотрены места для ниш и гардеробных. Сдаются лоты с подчистовой отделкой, стандартными окнами и высотой потолков 2,72 метра.

Внутренняя территория представляет собой закрытый двор-парк. Во дворе предусмотрена площадка для детей разных возрастов, а также зона для занятия спортом. На территории ведется круглосуточное видеонаблюдение, на входе в дом установлен домофон с функцией FaceID. Для владельцев автомобилей предусмотрен подземный паркинг.

Жилой комплекс расположен в Ленинском районе. В пешей доступности находятся медицинские центры, торговые комплексы, образовательные учреждения, спортивные секции и большой парк. Метро «Чкаловская» расположено в 10 минутах транспортом.

Безопасность

Паркинг

Инфраструктура

Квартиры в ЖК Шаумяна 77

Показать фильтр
Комнаты
Этаж
От
До
2
7
13
18
23
Цена
От
До
6 877 707
8594150
10310594
12027037
13 743 480
Площадь
От
До
37.8
49.2
60.6
71.9
83.3
выбрать вариант
списком
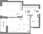
Однокомнатная квартира
38.4 м2
ЖК Екатеринбург
38.4 м2 13 этаж
38.4 м2
Кухня 15.3 м2
Жилая 12.7 м2
Балкон: да
13 этаж
Цена:
7 390 337 
Однокомнатная квартира
38.4 м2
ЖК Екатеринбург
38.4 м2 14 этаж
38.4 м2
Кухня 15.3 м2
Жилая 12.7 м2
Балкон: да
14 этаж
Цена:
7 427 105 
Однокомнатная квартира
39.8 м2
ЖК Екатеринбург
39.8 м2 11 этаж
39.8 м2
Кухня 16 м2
Жилая 13.7 м2
Балкон: да
11 этаж
Цена:
7 460 279 
Однокомнатная квартира
39.7 м2
ЖК Екатеринбург
39.7 м2 12 этаж
39.7 м2
Кухня 15.9 м2
Жилая 13.7 м2
Балкон: да
12 этаж
Цена:
7 480 045 
Однокомнатная квартира
38.4 м2
ЖК Екатеринбург
38.4 м2 16 этаж
38.4 м2
Кухня 15.3 м2
Жилая 12.7 м2
Балкон: да
16 этаж
Цена:
7 500 641 

Ипотечный калькулятор

Заполните одну заявку для всех банков. Банки партнеры подберут вам оптимальную ипотечную программу, рассчитают точную сумму ипотечных платежей, срок кредита и расскажут о всей процедуре выдачи ипотеки. Сервис бесплатный, все договорные отношения по оформлению ипотечного кредита вы заключаете с банком

Сумма кредита  
Ежемесячный платеж  
Онлайн-заявка на ипотеку
Оставьте заявку сразу в несколько банков-партнеров

Ипотечный калькулятор не является рекламой чьих-либо финансовых услуг, это лишь инструмент для расчета, не основанного на конкретном банковском продукте, исходя из вводимых пользователем данных.

Спасибо за заявку!