Район:
Академический
Срок сдачи:
Сдан
Материал:
Кирпично-монолитный
Отделка:
Подчистовая

Про жилой комплекс Твинс

Современный проект, возведенный по технологии кирпично-монолитного строительства с фасадами, облицованными штукатуркой.

В проекте представлено множество планировочных решений, от студий до просторных 3х-комнатных квартир. Все лоты сдаются с подчистовой отделкой, высотой потолков 2,7 метра и стандартными окнами.

Территория комплекса благоустроена — имеется детская и спортивная площадки, зоны для отдыха, активных прогулок и работы. Для автовладельцев предусмотрен теплый подземный паркинг.

Жилой комплекс расположен в экологически чистом районе с хорошо развитой инфраструктурой. В пешей доступности имеется все необходимое — продовольственные магазины, медицинские и образовательные учреждения, аптеки, кафе и рестораны. Вблизи жилого комплекса находится торговый центр «Веер-Молл».

Безопасность

Паркинг

Инфраструктура

Квартиры в ЖК Твинс

Показать фильтр
Комнаты
Этаж
От
До
10
14
18
21
25
Цена
От
До
7 253 022
8133978
9014934
9895889
10 776 845
Площадь
От
До
40.49
49.33
58.16
67.00
75.83
выбрать вариант
списком
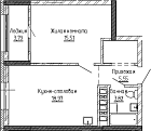
Двухкомнатная квартира
40.49 м2
ЖК Екатеринбург
40.49 м2 23 этаж
40.49 м2
Кухня 19.21 м2
Жилая 10.95 м2
Балкон: да
23 этаж
Цена:
7 253 022 
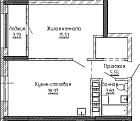
Двухкомнатная квартира
40.49 м2
ЖК Екатеринбург
40.49 м2 21 этаж
40.49 м2
Кухня 19.21 м2
Жилая 10.95 м2
Балкон: да
21 этаж
Цена:
7 253 022 
Двухкомнатная квартира
40.49 м2
ЖК Екатеринбург
40.49 м2 24 этаж
40.49 м2
Кухня 19.21 м2
Жилая 10.95 м2
Балкон: да
24 этаж
Цена:
7 305 077 
Двухкомнатная квартира
43.85 м2
ЖК Екатеринбург
43.85 м2 21 этаж
43.85 м2
Кухня 18.97 м2
Жилая 15.51 м2
Балкон: да
21 этаж
Цена:
7 497 441 
Двухкомнатная квартира
43.85 м2
ЖК Екатеринбург
43.85 м2 22 этаж
43.85 м2
Кухня 18.97 м2
Жилая 15.51 м2
Балкон: да
22 этаж
Цена:
7 497 441 

Ипотечный калькулятор

Заполните одну заявку для всех банков. Банки партнеры подберут вам оптимальную ипотечную программу, рассчитают точную сумму ипотечных платежей, срок кредита и расскажут о всей процедуре выдачи ипотеки. Сервис бесплатный, все договорные отношения по оформлению ипотечного кредита вы заключаете с банком

Сумма кредита  
Ежемесячный платеж  
Онлайн-заявка на ипотеку
Оставьте заявку сразу в несколько банков-партнеров

Ипотечный калькулятор не является рекламой чьих-либо финансовых услуг, это лишь инструмент для расчета, не основанного на конкретном банковском продукте, исходя из вводимых пользователем данных.

Спасибо за заявку!